
توضیح مختصر:
تک سرنشین اروپایی جرثقیل بالابر ماشین های جمع و جور طراحی شده و تولید در مطابق با استاندارد FEM و DIN است که با تکنولوژی پیشرفته و طراحی زیبا. تقسیم به نوع کلی و نوع تعلیق، حمایت از استفاده از بالابر الکتریکی استاندارد اروپا، مناسب برای کارگاه و بارگیری مواد انبار، مونتاژ دقت قطعات بزرگ و مکان های دیگر.

این می تواند به طور گسترده ای در تولید ماشین آلات، متالورژی، نفت، سنگفرشی، بندر، راه آهن، هواپیمایی مدنی، مواد غذایی، کاغذ سازی، ساخت و ساز، صنایع صنایع الکترونیک، انبار و سایر شرایط دستکاری مواد استفاده می شود. به کار بردن مواد مورد نیاز برای موقعیت مکانی دقیق، اجزای سازنده دقیق وضعیت مونتاژ.

تصاویر تفصیلی:

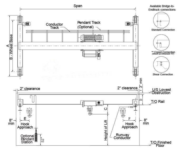
طرح نقاشی:

پارامترهای فنی:
طول | متر | 7.5 | 10.5 | 13.5 | 16.5 | 19.5 | 22.5 | 25.5 |
ظرفیت | t | 1 تا 12.5 تن | ||||||
وزن مجموع | کیلوگرم | 1781 ~ 12086 | ||||||
وزن تریلر | کیلوگرم | 405 ~ 740 | ||||||
حداکثر بار چرخ | قلم | 13.5 ~ 90.94 | ||||||
راه آهن مسافرتی | P24 ~ P43 | |||||||
سرعت بالا بردن | متر / دقیقه | 0.8 / 5 | 0.8 / 5 | 0.8 / 5 | 0.8 / 5 | 0.8 / 5 | 0.8 / 5 | 0.8 / 5 |
ارتفاع بالابری | متر | ≥ 6 | ≥ 6 | ≥ 6 | ≥ 6 | ≥ 6 | ≥ 6 | ≥ 6 |
قدرت موتور کامل | کیلووات | 4.31 | 4.31 | 4.31 | 4.31 | 4.67 | 4.67 | 4.67 |
سرعت جرثقیل | متر / دقیقه | 3-30 | 3-30 | 3-30 | 3-30 | 3-30 | 3-30 | 3-30 |
سرعت چرخ دستی | متر / دقیقه | 2-20 | 2-20 | 2-20 | 2-20 | 2-20 | 2-20 | 2-20 |
وظیفه کاری | M5 / A5 | |||||||
